Rustico in vendita a Pescaglia (San Martino In Freddana)
Descrizione
La proprietà si trova sulle colline Lucchesi a poca distanza dalla Versilia, immersa nel verde
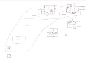
Il terreno si estende per circa 17ettari, e si divide in appezzamenti di terreno misti : bosco, uliveto, vigneto e seminativo
Tramite un cancello automatico si accede al tipico viale alberato Toscano, le piante di olivo e cipresso portano all' ampio spazio adibito a parcheggio auto (circa 8 posti )
Le unità immobiliari sono due, ciascuna di circa 100mq , caratterizzate dal fascino del rustico e completamente ristrutturate : facciate in sasso, infissi in legno, pavimenti in terracotta e parquet, soffitti con travi a vista.
Entrambi gli immobili si elevano su due piani fuori terra e sono così composti :
Primo Rustico : soggiorno con caminetto, sala da pranzo, cucina con porta che apre verso il porticato esterno e bagno. Al primo piano troviamo 3 camere da letto ( di cui una con terrazzo vista panoramica) e un bagno
Secondo Rustico : soggiorno con caminetto, sala da pranzo, cucina con porta che apre verso patio esterno , un bagno e una comoda lavanderia. Al piano primo troviamo due camere da letto (di cui una con terrazzo con vista panoramica) e un bagno
All'esterno una bellissima piscina di 12x6 con locale tecnico , tutto in perfette condizioni
La ristrutturazione è stata completata nel 2015, con ottime rifiniture e grande attenzione ai dettagli
Ci troviamo in una posizione strategica :
11Km dal Centro storico di Lucca
34KM dall'aeroporto di Pisa
22 km dalle spiagge versiliesi dove troviamo anche la rinomata Forte dei Marmi
90Km da Firenze



















































