Loft in vendita a Pietrasanta
Descrizione
Pietrasanta - Versilia
Vendiamo affascinante Loft situato nel cuore del centro storico di Pietrasanta, all'interno di una corte privata tranquilla e sicura.
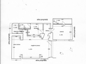
L'appartamento si dispone totalmente a Piano Terra con ampie finestre che affacciano sulla corte interna
L' ampia zona giorno attualmente è in open space ma c'è la possibilità di personalizzarla ulteriormente , ad esempio con eventuali porte scorrevoli a chiusura della cucina
Pavimento in resina, Impianto di riscaldamento e aria condizionata centralizzato a soffitto, impianto elettrico studiato nei minimi dettagli per avere vari tipi di illuminazione che rendono gli ambienti maggiormente accoglienti
Attualmente composto da ampio soggiorno con cucina, lavanderia, camera matrimoniale con bagno privato, cameretta con bagno
A pochissima distanza un ampio posto auto privato e coperto di circa 20 mq
L'Arredo è Compreso nel prezzo di vendita , anch'esso studiato nei minimi dettagli per particolarità e eleganza
































